1 / 5
Widely applied for loading and unloading in outdoor areas such as material stocks, cement plants, granite industry, construction, and engineering industries.
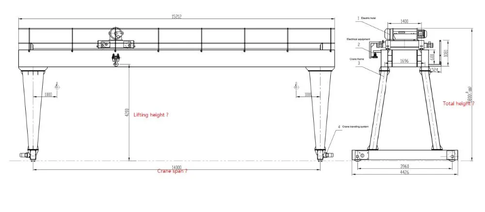
| Capacity (T) | 3 | 5 | 10 | 16 | 20 |
|---|---|---|---|---|---|
| Span (m) | 12, 16, 20, 24, 30 | ||||
| Lifting Speed (m/min) | 8, 8/0.8 | 8, 8/0.8 | 7, 7/0.7 | 3.5 | 3.5 |
| Cross Traveling (m/min) | 20 | 20 | 20 | 20 | 20 |
| Working Duty | A3 | ||||
| Power Supply | 380V 50/60Hz 3Phase AC (Customized) | ||||
• Inquiry and consulting support
• CAD design drawings
• Factory viewing
• Strict quality control system
• Real-time production video & photos
• On-time manufacture guarantee
• Installation training
• Engineers available overseas
• Online and telephone support




1. Electric parts and hoist packed by high-quality plywood crate. 2. Other parts packed by woven bag. 3. Shipped by containers or bulk ship.